地址:南京市秦淮区永丰大道36号03栋206、207单元
日期:一周内
浏览:102
服务态度:5.00分
联系方式:
工作速度:3.5分
完成质量:3.9分
设计类型:全案设计

上班不止是在“Ctrl+Z(返回操作)”与忘记“Ctrl+S(保存)”的焦虑与紧张中度过,而是能在有娱乐、学习、社交等多功能的办公场所中,让自己能有放松、交流的机会,以产生身心上的愉悦与舒适。
然而,目前大部分的办公室设计都只注重功能性,空间都围绕“办公”而展开,而忽略了“人”在空间里的角色。


现在请你忘记你对办公空间脑海里的固有印象,来看看这个科技公司吧~
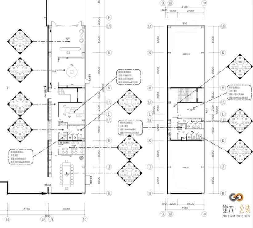
接待大厅
白色的墙壁给空间带来了明亮感,而线条勾勒的墙壁以一种大胆的视觉经济方式提供了增加高度的错觉。精锐稳重的整体空间气质则由中性灰色展现处来。
本设计项目一共两层,为了增加两层的联动性,在前厅接待处旁便是过道,陈列了公司历程与荣誉,增加空间的观赏性,墙壁上带有办公区指示,简洁明快。

开放式办公区
针对开放性办公空间而言,觉木充分考虑了个人和团队的不同工作的需求及场景的选择,在团队和个人的平衡上做了最大的平衡。
在软装上选用定制的弧形家具呼应空间的流线设计,增加办公区域的设计感,在物理距离上保持一定的间隔来确保舒适的人员密度。应秉持以员工为中心的理念,通过一系列手段来增强空间的舒适性,提升员工的身心健康。

觉木公装考虑到平面的独特性,办公环境的整体照明进行了专门的设计,采用智能调光控制,来提升办公区的舒适度。角落处则运用彩色灯光与周围的玻璃材质进行光线反射增加空间的色彩变化,更加有层次感。

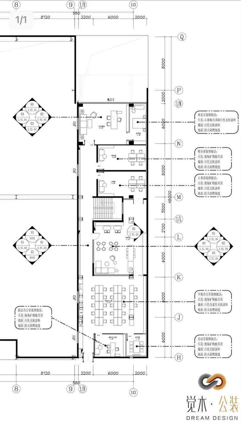
会议室
会议室最大化利用自然采光、创建一个通透开敞的空间氛围。除了它本身的会议交流功能,其流线造型更能延长空间的视觉感,让空间变得具有可探索性。白色橱柜与海军蓝内里的撞色更是清爽大气,象征着激荡的思想与志向的风帆。

休息区
休息区承载了所有能想象到的办公休闲形式:非正式团队会议的讨论点、用于个人专注工作的办公桌、满足个人或团队工作的大型吧台。

在休闲茶吧的设计上,吧台选用木质材质,增加吧台的品质感,天窗的设计更是心明眼亮,令人啧啧称奇。更用灯饰点缀空间,烘托氛围,与开放式办公区互相映衬,既具有现代感,又具有工业风色彩。

总经理室
将多余繁缀去除,简单与纯粹,自有感动人心的力量。总经理办公室将简约之风发挥到极致。豁然开朗的空间,如园中景物似画卷般展开,人便自然有了更多的交流。
几何图形的组合使得意象在通过的瞬间产生扭曲、变形,这种将三维空间凝固化的意向,希望能对打破固化思维,起到抛砖引玉的作用。整个可见的形、色、质中暗含着设计美学、哲学思想、追求可以变化的空间,只留其意,在此环境中实现天、地、人和谐可持续发展。

副总办公室
好的空间,能给人带来与众不同的感受。简约之美是将烦扰喧嚣挡在门外,在安静中展示内在的广阔天地。副总办公室的设计能让员工与客户之间有了更多的交流,橙色色块的运用更是点睛之笔,如此一来,单调的办公室瞬间灵动起来,充满活力。
高科技工作场所与人性之间的平衡,以及对温暖材料和舒适性的基本需求,是通过以人为中心的设计元素来实现的。
设计师总是会比人们更往前一步,利用创意与设计思维,为人们勾画未来。也许每位打工人对办公空间的畅想都会有所不同,但人们对乌托邦的憧憬与追求如何天马行空都不过分,因为他们的理想追求会在设计实践者的推动中得以实现。